THE HOME GALLERY

    OPENING TIMES

Call us: 01480 710262

Hit the heights of modern living in The Wintringham Lymm. The ground floor hosts an open plan kitchen/dining/family with bi-fold doors to the rear garden. A spacious living room and principal bedroom with dressing area and en-suite, along with additional study or single bedroom make up the first floor. The second floor boasts a double bedroom with en-suite and single bedroom as well as a family bathroom.

1,365 sq.ft

Plot 97 4 Bedrooms £499,750

Plot Features:

10 Year Warranty10 Year Warranty
Downstairs CloaksDownstairs Cloaks
Dressing RoomDressing Room
En SuiteEn Suite
Energy Efficient HomeEnergy Efficient Home
GarageGarage
NEFF Integrated AppliancesNEFF Integrated Appliances
Open Plan DiningOpen Plan Dining
Room Metric (mm) Imperial (ft/in)
Kitchen/Dining/Family : 4900x6900mm 16'1"x22'8"
WC/Cloak: 850x1675mm 2'9"x5'6"

Wintringham Lymm Ground Floor

Wintringham Lymm Ground Floor
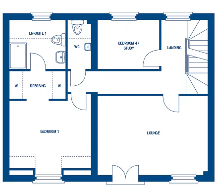
Room Metric (mm) Imperial (ft/in)
Lounge: 4900x3510mm 16'1"x11'6"
Bedroom 1: 3600x3290mm 11'10"x10'10"
Ensuite: 2485x2165mm 8'2"x7'1"
Dressing: 2485x1220mm 8'2"x4'0"
Bedroom 4: 2735x2165mm 9'0"x7'1"
WC: 1000x2165mm 3'3"x7'1"

Wintringham Lymm First Floor

Wintringham Lymm First Floor
Room Metric (mm) Imperial (ft/in)
Bedroom 2: 2735x4000mm 9'0"x13'1"
Ensuite 2: 2050x1320mm 6'9"x4'4"
Bedroom 3: 2735x2785mm 9'0"x9'2"
Bathroom: 2050x1940mm 6'9"x6'4"

Wintringham Lymm Second Floor

Wintringham Lymm Second Floor

Full screen FULL SCREEN

Site Plan
Chichester
Norfolk
Lymm
Cotswold
Davenham
Winster
Henley
Houghton
Burford
Kensington
Wintringham Lymm

Morris Choices

 

We may build your house, but it's you that transforms it into a home.

At Morris, we've done the hard work for you, expertly selecting a wide range of quality fixtures & fittings that will match your individual style. From kitchens and bathroom to flooring and finishing touches. Together with our specialist interior designer and brand partners we pride ourselves on our handpicked choices we have for our customers.

FIND OUT MORE >
Morris Choices
Content for Tab 3
Buying a home made easy
BUYING SCHEMES
High specification as standard
MORRIS CHOICES

Opening Times

Monday 10.30am – 5.30pm
Tuesday Closed
Wednesday Closed
Thursday 10.30am – 5.30pm
Friday 10.30am – 5.30pm
Saturday 10.30am – 5.30pm
Sunday 10.30am – 5.30pm